
电气工程量计算,尤其是照明回路配线的走向复杂、敷设方式多样、管径规格多变,传统的手工测量与计算不仅效率低下,而且极易出现错算、漏算。鸿鹄CAD凭借【多段线(PL)】与【属性】功能,将照明回路配线工程量计算转化为直观、精准的数字化过程,彻底告别了“比例尺+计算器”的旧时代。
一、基础知识
)灯器具安装按《建筑电气与智能化通用规范》GB55024一2022及《建筑电气工程施工质量验收规范》GB50303一2015有关规定,灯器具安装基本要求为:
1.一般规定
(1)灯具及其配件应齐全,不应有机械损伤、变形、涂层剥落和灯罩破裂等缺陷;灯座的绝缘外壳不应破损和漏电;带开关的灯座,开关手柄应无裸露的金属部分。

(2)软线吊灯的软线两端应做保护扣,两端线芯应搪锡;当装升降器时,应采用安全灯头;连接灯具的软线应盘扣、搪锡压线,当采用螺口灯头时,相线应接于螺口灯头中间的端子上。
(3)从接线盒引至灯具的电线截面面积应与灯具要求相匹配且不应小于1mm²。埋地灯具、水下灯具及室外灯具的接线盒,其防护等级应与灯具的防护等级相同,且盒内导线接头应做防水绝缘处理。
(4)照明灯具使用应满足消防安全要求,开关、插座和照明灯具靠近可燃物时,应采取隔热、散热等防火措施。除敞开式灯具外,其他各类容量在100W及以上的灯具,引人线应采用瓷管、矿棉等不燃材料做隔热保护。
(5)高低压配电设备、裸母线及电梯曳引机的正上方不应安装灯具。
(6)露天安装的灯具应有泄水孔,且泄水孔应设置在灯具腔体的底部。灯具及其附件、紧固件、底座和与其相连的导管、接线盒等应有防腐蚀和防水措施。
(7)灯具固定应牢固可靠,在砌体和混凝土结构上严禁使用木楔、尼龙塞和塑料塞固定。
(8)I类灯具的外露可导电部分必须与保护接地导体可靠连接,连接处应设置接地标识。
(9)当正常照明灯具安装高度在2.5m及以下,且灯具采用交流低压供电时,应设置剩余电流动作保护电器作为附加防护。疏散照明和疏散指示标志灯安装高度在2.5m及以下时,应采用安全特低电压供电。
(10)安装在人员密集场所的吊装灯具玻璃罩,应采取防止玻璃破碎向下溅落的措施。
(11)标志灯安装在疏散走道或通道的地面上时,标志灯管线的连接处应密封;标志灯表面应与地面平顺,且不应高于地面3mm。

二、清单计量规则

三、案例分析
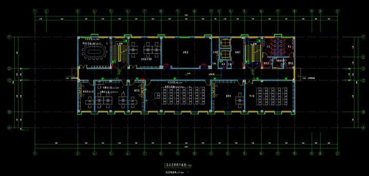
1.观察三层应急照明平面图、集中电源YJZM2和设备材料表,配线为WDZN-RYJS-2x2.5-CC。



2. 为便于计算竖向配线,可借助的【打印为PDF】功能,将材料表导出为PDF文件。在导出过程中,需特别注意设置页面尺寸及内容颜色,以确保PDF文件的清晰度,具体效果图请参见上图。

3. 输入快速启动命令“多段线”或点击【绘制】中的【多段线】命令,并启用F8【正交】功能,以提升绘制的便利性与精准性。绘制完成后,按“Esc”快捷键退出命令,空格键可重复上一个命令。
绘制完成后,点选需查看工程量的给水管,选中后管道呈蓝色,在【属性】中查看其长度,并将计算表复制到鸿鹄CAD中以便统计。水平照明回路配线工程量为57.354米。



4. 计算照明回路竖向配线:3(楼层高度)-1.5(配电箱离地高度)-0.22(配电箱高度)+【0.447+0.22】(配线进入各种开关箱、柜、板预留长度)+(3(楼层高度)-2.5(急照明灯离地高度))*10+(3(楼层高度)-2.5(楼层灯离地高度))*4+(3(楼层高度)-(2+0.2)(安全出口离门高度+门高度))*2+(3(楼层高度)-1(疏散标志灯具离地高度))*2+(1.5(楼层高度)-1(疏散标志灯具离地高度))*2=15.547米。
总照明回路配线长度=水平配线+竖向配线=57.354+15.547=72.901米。

通过鸿鹄CAD,只需“绘制-点击-查看”三步,即可完成复杂回路管线长度的精准计算。结合图层管理与查找功能,能轻松应对多系统、多规格的算量需求,将工作效率提升数倍,同时确保数据的精确性。
#多段线 #鸿鹄CAD#照明回路配线#
正规配资平台官网提示:文章来自网络,不代表本站观点。